projects
on the boards
under construction
residential
Houses of the Sun & Moon
architect’s garden studio
buch residence
walters schaefer residence
hector wieringa residence
berger residence
mcfarland residence
Payne Residence formerly The Adachi Watanabe Residence
1716 micheltorena
hopkins studio
den hartog nickell residence
stein residence
chasman residence
sustainable
Payne Residence + Studio
commercial
gobi restaurant
goode studio
interim studio
pazzo gelato
sunshine+cloud
select projects list
who we are
process
awards & publications
home
projects
on the boards
under construction
residential
Houses of the Sun & Moon
architect’s garden studio
buch residence
walters schaefer residence
hector wieringa residence
berger residence
mcfarland residence
Payne Residence formerly The Adachi Watanabe Residence
1716 micheltorena
hopkins studio
den hartog nickell residence
stein residence
chasman residence
sustainable
Payne Residence + Studio
commercial
gobi restaurant
goode studio
interim studio
pazzo gelato
sunshine+cloud
select projects list
who we are
process
awards & publications
home
FIN Architecture Inc. | Projects | 1716 Micheltorena
FIN Architecture residential project 1716 Micheltorena in Silver Lake, Los Angeles
FIN, Architecture, Los Angeles, Christopher Payne, LEED, AP, Projects, 1716, Micheltorena, Silver Lake
27
page-template-default,page,page-id-27,ajax_fade,page_not_loaded,smooth_scroll,,qode-child-theme-ver-1.0.0,qode-theme-ver-3.8,wpb-js-composer js-comp-ver-5.4.5,vc_responsive
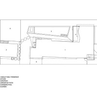
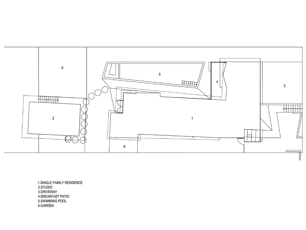
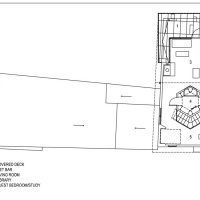
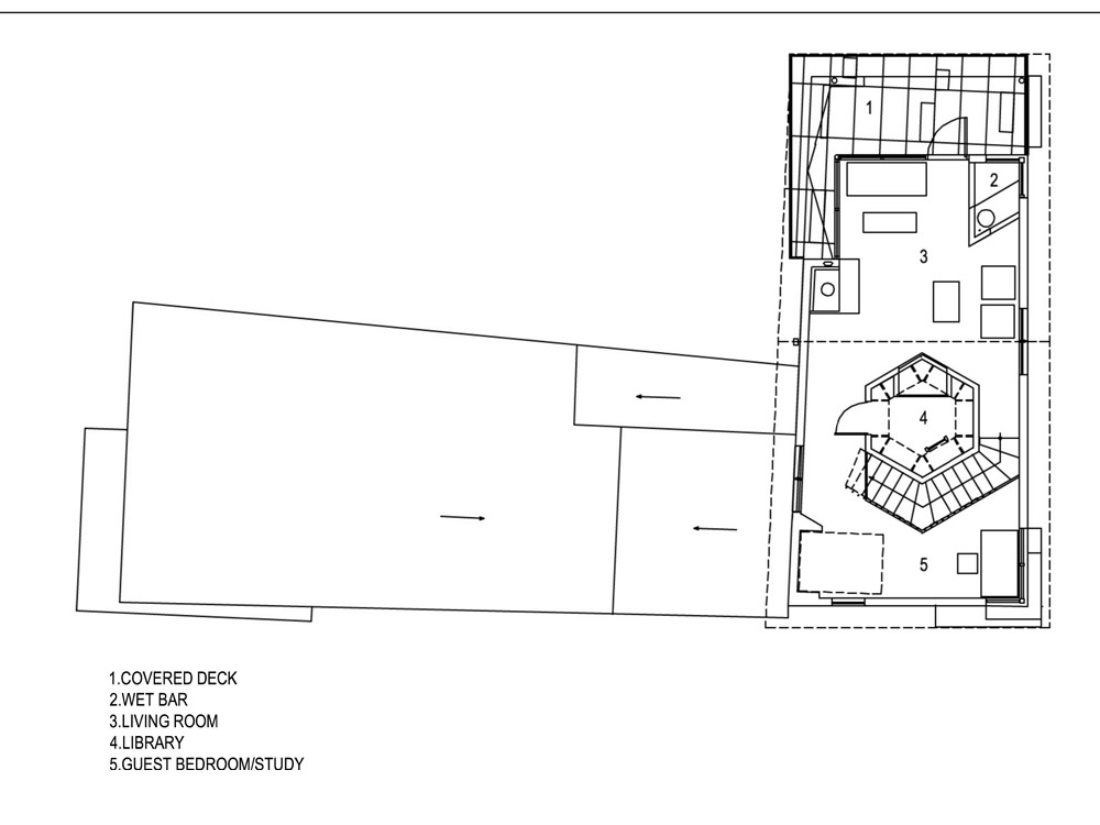
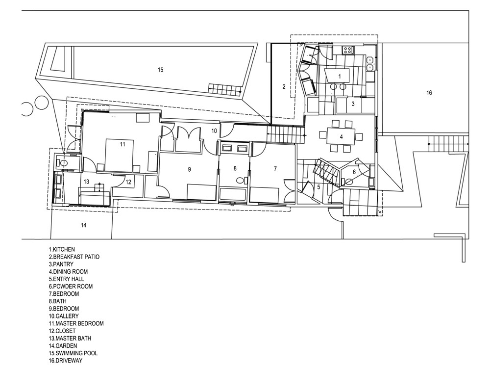
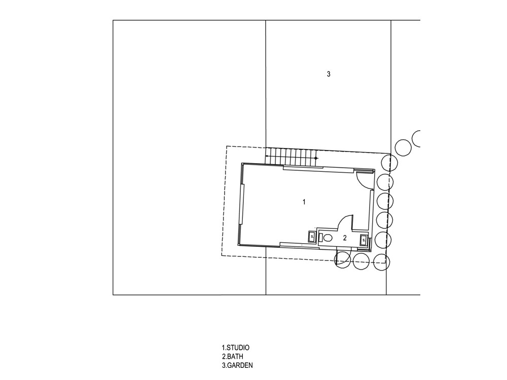
1716 micheltorena
Silver Lake
New two-story residence with detached painting studio in rear yard
photos
sketches
drawings