projects
on the boards
under construction
residential
Houses of the Sun & Moon
architect’s garden studio
buch residence
walters schaefer residence
hector wieringa residence
berger residence
mcfarland residence
Payne Residence formerly The Adachi Watanabe Residence
1716 micheltorena
hopkins studio
den hartog nickell residence
stein residence
chasman residence
sustainable
Payne Residence + Studio
commercial
gobi restaurant
goode studio
interim studio
pazzo gelato
sunshine+cloud
select projects list
who we are
process
awards & publications
home
projects
on the boards
under construction
residential
Houses of the Sun & Moon
architect’s garden studio
buch residence
walters schaefer residence
hector wieringa residence
berger residence
mcfarland residence
Payne Residence formerly The Adachi Watanabe Residence
1716 micheltorena
hopkins studio
den hartog nickell residence
stein residence
chasman residence
sustainable
Payne Residence + Studio
commercial
gobi restaurant
goode studio
interim studio
pazzo gelato
sunshine+cloud
select projects list
who we are
process
awards & publications
home
FIN Architecture Inc. | Projects | Nickell Den Hartog Residence
FIN Architecture residential project, the Nickell Den Hartog Residence in Los Angeles.
FIN, Architecture, Los Angeles, Christopher Payne, LEED, AP, Projects, Nickell Den Hartog, Residence
25
page-template-default,page,page-id-25,ajax_fade,page_not_loaded,smooth_scroll,,qode-child-theme-ver-1.0.0,qode-theme-ver-3.8,wpb-js-composer js-comp-ver-5.4.5,vc_responsive
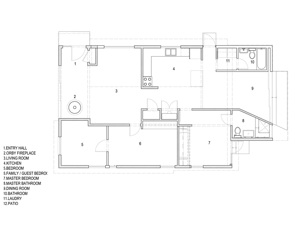
den hartog nickell residence
Eagle Rock
Major remodel, and addition to existing residence
photos
drawings