projects
on the boards
under construction
residential
Houses of the Sun & Moon
architect’s garden studio
buch residence
walters schaefer residence
hector wieringa residence
berger residence
mcfarland residence
Payne Residence formerly The Adachi Watanabe Residence
1716 micheltorena
hopkins studio
den hartog nickell residence
stein residence
chasman residence
sustainable
Payne Residence + Studio
commercial
gobi restaurant
goode studio
interim studio
pazzo gelato
sunshine+cloud
select projects list
who we are
process
awards & publications
home
projects
on the boards
under construction
residential
Houses of the Sun & Moon
architect’s garden studio
buch residence
walters schaefer residence
hector wieringa residence
berger residence
mcfarland residence
Payne Residence formerly The Adachi Watanabe Residence
1716 micheltorena
hopkins studio
den hartog nickell residence
stein residence
chasman residence
sustainable
Payne Residence + Studio
commercial
gobi restaurant
goode studio
interim studio
pazzo gelato
sunshine+cloud
select projects list
who we are
process
awards & publications
home
FIN Architecture Inc. | mcfarland residence
FIN Architecture, McFarland Residence
Fin, Architecture, Christopher Payne, McFarland, Residence, Los Angeles, SilverLake
1389
page-template-default,page,page-id-1389,ajax_fade,page_not_loaded,smooth_scroll,,qode-child-theme-ver-1.0.0,qode-theme-ver-3.8,wpb-js-composer js-comp-ver-5.4.5,vc_responsive
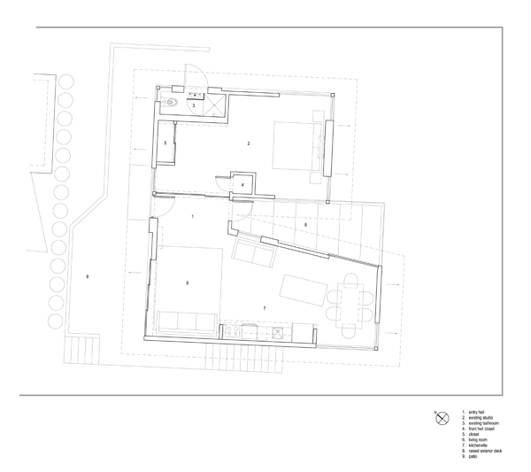
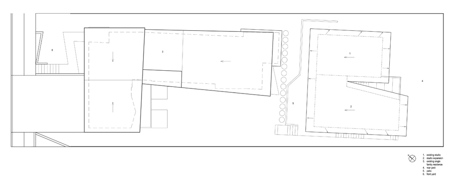
mcfarland residence
mcfarland residence
Silver Lake
expansion of existing rear yard studio
photographs
studio prior to expansion
exterior
completed hardscape and landscaping
drawings