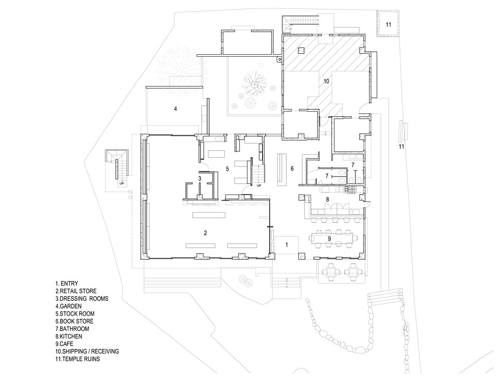
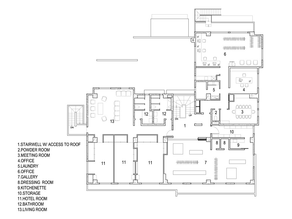
Hayama-machi, Miura-gun, Kanagawa Prefecture, Japan
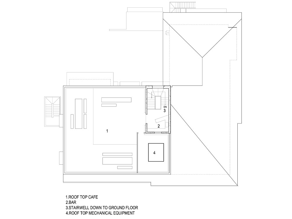
A collaboration with Lindon Schultz of Red Dessert and FIN Architecture involving the renovating of an existing two story building adjacent to Buddhist temple & ruins. A tenant improvement that included the addition of a fashion boutique with a small cafe on the ground floor and a rooftop cafe.






